LOADING STUFF...
Introduction to the Landing Zone
Chamber of Commerce/Organization
Commonly used in e-commerce
Common Services
Industrial/manufacturing
Wholesale/retail
Tertiary/Services
Engineering/Energy
Transportation/warehousing/cross-border
Public Recommendation
Local Self-Media
Official Public Number
Books and Periodicals
Indonesia Official Navigation
About Printronix
fig. beginning
About Us
Press Information
Chinese Newsletters
Industry Newsletters
social dynamics
Policy Information
Recruitment/Job Hunting
Recruitment
Job Search
Business Information
Indonesia Exhibitions
Corporate Communications Magazine
Indonesia Supply and Demand
Overseas Customer Cases
Membership Directory
Life Services
check the calendar against
Popular flights
home
-
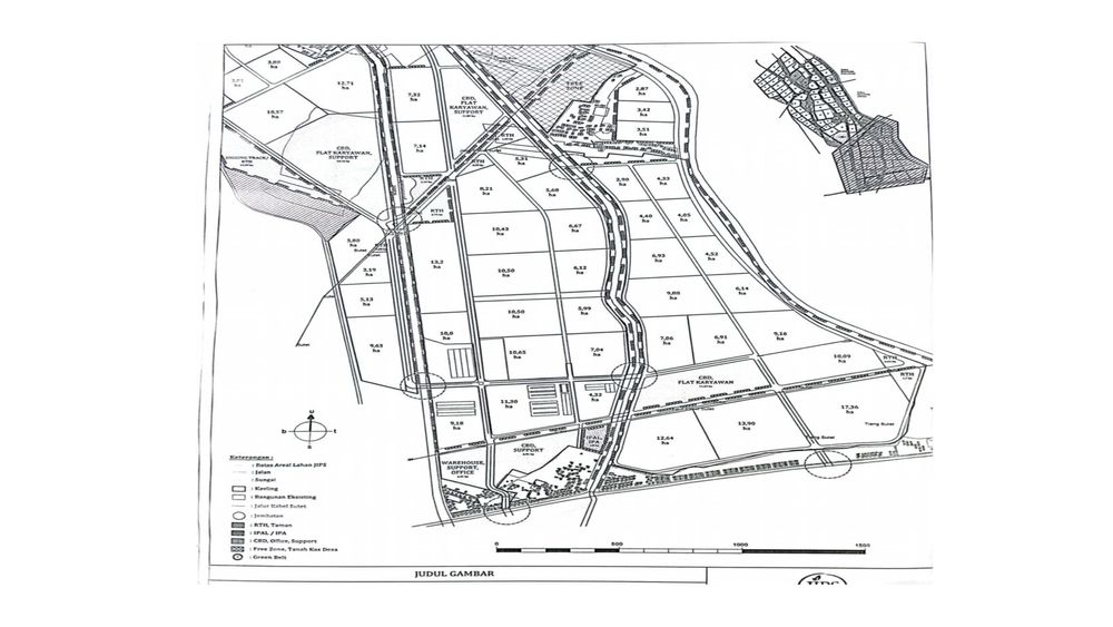
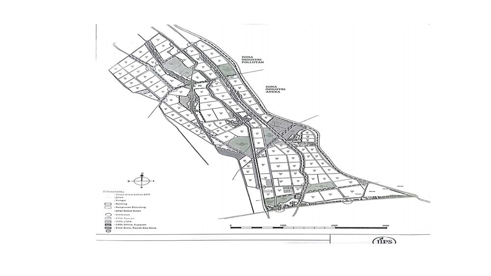
Introduction to the Park
-
JIPS Industrial Park [Chinese
JIPS Industrial Park [Chinese
Introduction to the Park
5mos agoupdate
PrintEnterprise
0
1
# Introduction to the Park
©
Copyright notes
The article is copyrighted and should not be reproduced without permission.
Prev
Surya Zida Industrial Park.
Next
Kendall Industrial Park [English/Chinese]
Related posts
Indonesia-China's Industrial Cities of the Xia, Shang and Zhou Dynasties【Chinese version
Jiibai Bonded Port Industrial Park[English
Indonesia Belt and Road Hi-Tech Development Zone [Chinese].
Jababeka jababeka industrial zone [Chinese].
Jiafeng Zhigu Industrial Park【Chinese
Huaxia Happiness Karawang New Town [Chinese].
Related articles
Jiafeng Zhigu Industrial Park【Chinese
MODERN CIKANDE INDUSTRIAL ZONE [Chinese]
Indonesia Belt and Road Hi-Tech Development Zone [Chinese].
China-Indonesia Economic and Trade Cooperation Zone [Chinese].
Popular Articles
Chinese Firms Participate in Indonesia's Waste-to-Energy Project Bidding
Indonesia's mandatory export of foreign currency deposits for one year next year
Indonesian Nickel Association and Forum Oppose Excessive Nickel Mining Penalty Standards
popular
look for sth.
artifact
communal
lives
popular
station
look for sth.
Baidu
Google Internet company
360
Sogou (dog breed)
Bing
gods and horses
artifact
Weight Query
Friendly Link Detection
Record Enquiry
SEO Query
Keyword mining
Material Search
big data word cloud
communal
know
microsoft
microblog
Douban, PRC social networking website
Search Outside Q&A
lives
Taobao Marketplace, a Chinese website for online shopping
Jingdong prefecture level city in Shandong
go to the kitchen (to prepare a meal)
Shankha Recipes
12306
Express 100
wherever you go
Hot recommendations:
News
Indonesia Official Navigation
Local Self-Media
English
English
Chinese
Indonesian